
Cottage Living in Beautiful Port Angeles, Washington
Welcome to Cottage Senior Living at Village Concepts of Port Angeles. Enjoy private residences for independent seniors located on the campus of our warm and friendly Park View Villas community, with a full calendar of activities and social opportunities right outside your front door. Park View Cottages feature a variety of amenities including attached garages, spacious floor plans, and full kitchens. Meal plans and housekeeping plans are also available. Enjoy retirement your way and leave the maintenance to us!

Flexible Fee Structure
We recognize that everyone's journey is unique, and that's why our care and service plans are tailored to your specific needs. This personalized approach not only enhances your quality of life but also provides the peace of mind of only paying for the services you truly need.

Services & Amenities
We offer a continuum of care that adapts to your evolving needs. Whether you're in search of a welcoming community with plenty of social opportunities or require personal assistance in daily activities, our committed team is here to help. Discover a community where residents thrive, families find peace of mind, and every day is an opportunity for new adventures.
Maintenance-free Living
Enjoy maintenance-free retirement in our Senior Cottages at Park View Villas. Whether it's landscaping, repairs, or maintaining the beauty of your home, we've got you covered. Our friendly Maintenance Director is onsite during full-time business hours and only a quick phone call away.

Activities
Our engaging activities calendar includes a variety of special interests! Our dedicated team takes special care in getting to know each resident so we can tailor our activities calendar to your favorite hobbies, pastimes, and passions. We also include plenty of excursions around the beautiful Pacific Northwest to local attractions and restaurants. Families are always welcome to join us for our special celebrations including Mother's Day Tea, Father's Day BBQ, and more!
Amenities at Park View Cottages


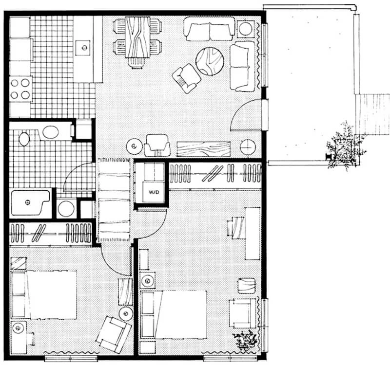
Floorplans

2 Bedroom, 1 Bath Cottage (840 sq/ft)
Experience the comfort of senior living in a spacious two-bedroom cottage. This thoughtfully crafted floor plan is the perfect way to enjoy retirement!

1 Bedroom, 1 Bath (615 sq/ft)
Discover the perfect blend of comfort and convenience in our 1 bedroom cottage, where you can enjoy the exclusive amenities of senior living right outside your front door.


Explore the Neighborhood
Discover the Beauty of Port Angeles
Experience the charm of Port Angeles, WA, surrounded by the beauty of Olympic National Park. Residents can enjoy scenic drives, wildlife observation, or a day trip to Victoria, BC. Explore downtown's shops and galleries, delve into maritime history at the annual Maritime Festival, and appreciate the artistic side at the Port Angeles Fine Arts Center. With a rich heritage showcased around this beautiful town, Port Angeles offers a delightful mix of nature and senior-friendly attractions.

Stories From Our Communities
-
Sip n' Paint at Park View Villas
With so many talented residents at Park View Villas of Port Angeles excited about art, our Executive Director Tammy Blessing thought she would jump in on the fun and be a part...
-
Village Concepts Celebrates 50 Years
Village Concepts celebrates 50 years of senior living! Our communities marked the occasion with prime rib dinners, cake, a special letter from CEO Stuart Brown, and plenty of...
-
Gone Fishing with Park View Villas
One fish in a barrel is worth two fish. At Park View Villas of Port Angeles, we want to fill up the entire barrel with fish! The team at Park View Villas loaded up our activit...

